ちとせのれんストリート

空き家、空きビルなどを再活用するリノベーション事業の一つとして築46年の廃墟だったビルをまるっとリノベーションし、ビル1階を個性的なフロアに大変身!1区画5坪からの小ぶりな店内では、店主のコダワリや地域の美味しい食材が存分に楽しめます。

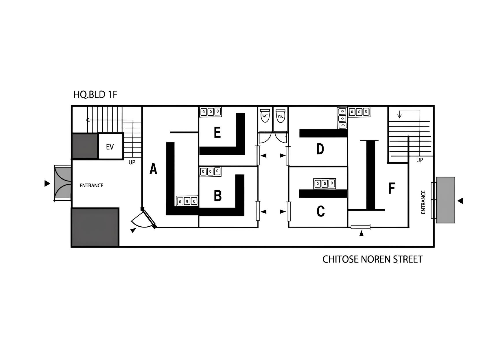
  • 1階/飲食フロア 千歳のれんストリート(全6店舗)
  • 2階・3階/ バー、スナックフロア (全5店舗)

出店店舗紹介

カウンター10席を構える鉄板焼き専門店。
日々仕入れる肉や海鮮などの様々な食材を目の前で焼いて調理しています。
絶妙な焼き加減で美味しくいただける千歳の隠れ家的鉄板焼き専門店です!

おばん彩 ごころ

カウンター8席ボックス席1つの小さな店内で、日替わり週替わりのおばんざい数品(家庭料理的なアテ)をご提供。
居酒屋のようで居酒屋じゃない、そんなお店。お酒と一緒に家庭的な味、お袋の味が楽しめます。

バル9

千歳市では珍しいナチュラルワインを提供してくれるお店。そして北海道ならではのジビエを使ったイタリアン料理が味わえる。ワイン好きが集まる素敵なお店です。

焼鳥ばんぶう

14時から飲める焼鳥店です。中札内産の鶏を中心に地元の食材にこだわっています。昼飲みやお一人様のお客様大歓迎。

Bar Bols

出店募集要項

● 起業したい方、まずは千歳のれんストリートから

起業したい方、まずは千歳のれんストリートから
仕入先、原価計算、料金設定、宣伝広告等、開店までの様々な業務をサポートいたします。

● 千歳のれんストリートの特徴

人件費をかけずにワンオペを考えている方、
内装や設備工事の予算をできるだけ抑えたい方
初めての飲食店経営をまずは無理なく始めたいという方、

千歳のれんストリートは飲食店開業の様々なハードルをできる限り抑えた「起業開業」を応援します

募集中テナント

のれんストリート C

賃料55,000円(内消費税5,000円)
管理費11,000円(内消費税1,000円)
敷金110,000円
(賃料2か月分)

物件概要

所在地
千歳市清水町2丁目7-17 HQビル1F
フロア面積
228.00㎡
店舗面積
5坪~10坪
付帯設備(基本設備/変更が生じる場合がございます)

(イ)上下水道
(ロ)電気設備
(ハ)ガス(都市ガス)
(二)3槽シンク(保健所許可対応)
(ホ)グリストラップ
(へ)換気扇
(ト)カウンター

※天蓋、ダクトファン等、設備変更は別途費用がかかります
◎トイレは共同水洗となります。

出店概要

契約形態
普通型建物賃貸借契約
契約期間
3年間(更新可)
休業日
各店舗において決定していただきます。
営業時間
各店舗において決定していただきます。(18時~23時の時間帯は全店舗営業のご協力をお願いします)

その他費用について

1.管理費内訳

  • 共用部分の光熱費(主として電気代等)、共用部日常清掃費
  • 共同水洗トイレの上下水道料・保守・消耗品・清掃費
  • その他共用部分に関する費用

2.その他の経費

以下の費用は各店舗で負担していただきます。

  • 専用コンセントからの電気料金、専用上下水道料※各個メーターにより負担して頂きます。
  • ガス使用料
  • 保健所申請料
  • 独自に行う広告宣伝費
  • 各店舗入り口看板
  • 保険料

その他注意事項

1.取り扱いメニューについて

1)内容等については事前にお打合せさせて頂きます。
2)最低一品は地産地消のメニューをご用意して頂きます。
3)営業形態、品目の大きな変更がある場合、運営会社で許可しない場合がございます。

2.注意事項

(イ)食品衛生管理者の資格は必要です。お持ちでない方には取得方法等ご説明致します。
(ロ)契約の際には連帯保証人1名が必要です。
(ハ)権利の譲渡・転貸は一切出来ません。
(二)入居後にテナント会を組織致し、合同企画(宣伝、イベント等)にご協力頂きます。

各種お問い合せ・出店申込先

千歳のれんストリート事務局
〒066-0035 北海道千歳市高台4-4-17(フジ商産株式会社)
TEL・FAX 0123-23-9400