おすすめ
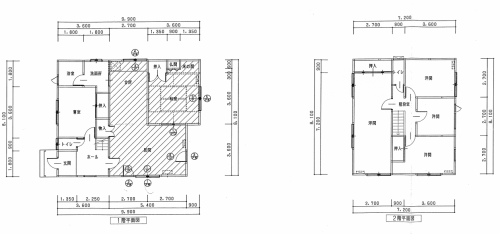
【物件№.0399】千歳駅まで徒歩約12分!事務所兼住宅・宿舎等におすすめ!6LDK 栄町2丁目戸建て
| 所在地 | 千歳市栄町2丁目17番17 |
|---|---|
| 賃料 | 150,000円 |
| 敷金 | 450,000円(賃料3ヶ月分) |
| 駐車場 | 2台あり |
|---|---|
| 構造・規模 | 木造 2階建て 6LDK |
| 現況 | 募集中 |
| 占有面積 | 13.92坪 約46㎡ |
| 契約方式 | 事業用定期借家 |
| 契約期間 | 応相談 |
| 損保 | 火災保険加入必須 賃貸保証サービス利用物件 |
| 設備 | 照明・FF式灯油ストーブ・暖房便座・浴室・洗面化粧台・給湯・台所 |
| 用途 | 事務所, 一軒家・事業用 |
| 備考 | 事務所兼住居 宿舎等 駅から徒歩12分 |














