契約済
【物件NO.0189】事業用土地建物付
| 所在地 | 千歳市根志越85番地5 |
|---|---|
| 賃料 | 220,000円(内消費税額 20,000円) |
| 敷金 | 600,000円(賃料3ヶ月分) |
| 礼金 | 無し |
| 仲介手数料 | 220,000円(内消費税額 20,000円)※賃料1か月分+消費税 |
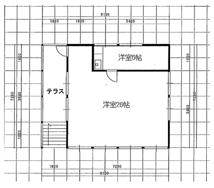
| 構造・規模 | 事務所/木造平屋建て |
|---|---|
| 現況 | 募集中 |
| 占有面積 | 事務所/約49㎡(木造平屋建て) 土地 /約3,000㎡ |
| 契約方式 | 一般 |
| 契約期間 | 3年間 |
| 更新 | 有り |
| 更新料 | 無し |
| 損保 | 管理会社指定の火災保険加入 賃貸保証サービス利用物件 |
| 設備 | 事務所/流し台・トイレ |
| 用途 | 事務所, 一軒家・事業用, 倉庫・土地 |
| 備考 | ・現状にて引渡し ・構築物建築不可 |











