【駅チカ×ペットOK!!】賃貸マンション紹介
掲載日:2025.01.22





駅チカ×ペットOKの賃貸マンションのご紹介です!
新年度に向けて千歳市で住居をお探しの皆様にもおすすめの物件です♪
千歳駅から徒歩8分・新千歳空港まで車で15分
立地が良く、街中へのお買い物などアクセス抜群の場所に位置しているマンションです。
ペットOKなので、愛するご家族と一緒に暮らすことが出来ます!
2025年1月現在、3部屋空きがございます。
各お部屋に1台ずつ駐車場(有料)もご用意ございます!
気になる方は詳細お気軽にお問い合わせください。
シェルヴィル
物件所在地:北海道千歳市清水町4丁目8-1
構造:鉄筋コンクリート7階建て
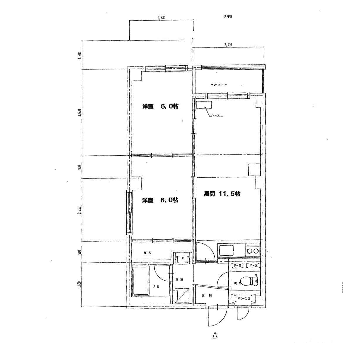
間取り:2LDK、バス・トイレ別
給湯:灯油(風呂・洗面所)
暖房:灯油
【お問合せ】
フジ商産株式会社 / 千歳テナントステーション
住所 千歳市高台4丁目4-17
電話番号 0123-23-5319
FAX 0123-24-8229








